Sylvania Osram Lightify 65W LED Recessed Smart Home 2700-6500K White Light Bulb

Can I use this fixture with a switch, when I don’t want it automated? And if turned off will it regain connection when switch is again turned on and go to the last brightness setting? Thanks.

Yes, you can use it with a switch. If you turn it off at the switch and turn it back on it’ll come back to the default color/brightness, which I think is white/100%.

Thank you Tyler, my wife isn’t one to use automation in the bathroom, so the switch will be used sometimes.

Keep in mind that this can cause instabilities in your zigbee network depending on how it is laid out. If you have child devices (e.g. battery powered sensors) that happen to route through the bulb, since almost all bulbs are routers, turning the bulb off with the switch can cause those devices to have communication issues until the network heals itself.

1 Like

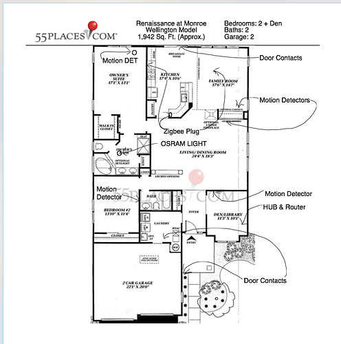
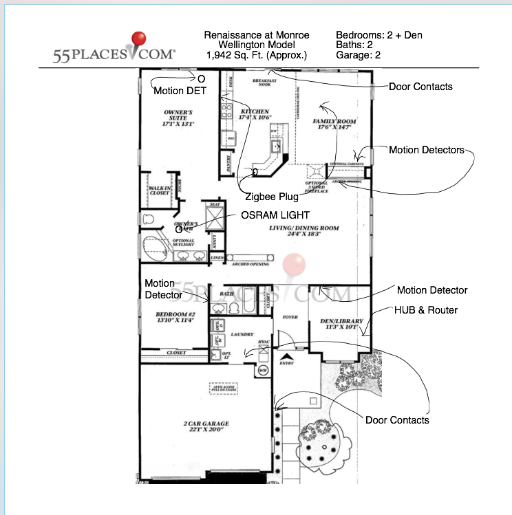
I have a bunch of SmartThings motion sensors, but all are very close to a Zigbee AC powered plugs, so I think, but can be wrong the lamp being added might not have an effect. Below is my floor plan
.